
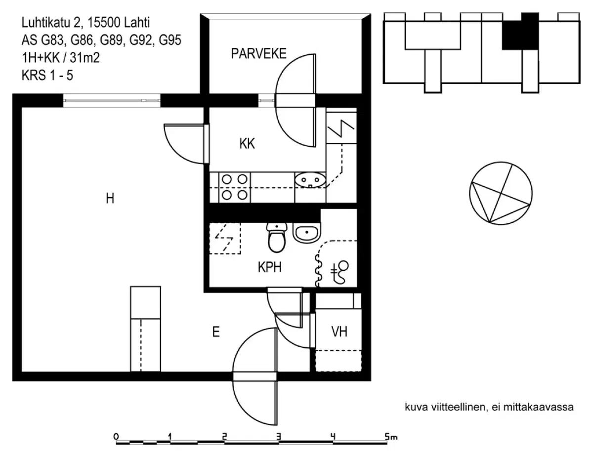
Kerinkallio sijaitsee Lahden kaakkoisosassa, hyvien kulkuyhteyksien päässä keskustasta. Lähimmältä bussipysäkiltä matkaa Lahden keskustaan on noin 15 minuuttia ja autolla matka taittuu kymmenessä minuutissa. Launeen erinomaiset palvelut, kuten ostoskeskus ja koulu, ovat noin puolentoista kilometrin päässä. Lähin ruokakauppa on vain viiden minuutin kävelymatkan päässä. Kolme viisikerroksista kerrostaloa on perusparannettu vuosina . Talojen yhteiskäytössä ovat maksuton pesutupa ja monipuoliset kerhotilat, joihin kuuluvat kokoustila ja lasten kerhohuone sekä maalaushuone, ompeluhuone ja puutyöverstas. Vesi ja DNA:n 50 Mbit/s laajakaista sisältyvät vuokraan. Lemmikit ovat tervetulleita.Olethan täyttänyt asuntohakemuksen, m2i/asuntohakemus. Tarjoamme asuntoja vain asuntohakemusten perusteella. Talossa on varallisuusrajat.